Home
Home Plans
Communities
Homes Available
Preferred Lenders
About Us
Contact Us
CONTACT US
Two Story
Santa Anna
This is some text inside of a div block.
Download Floor Plan
Request Info
PLAN Details
Features of this home plan.
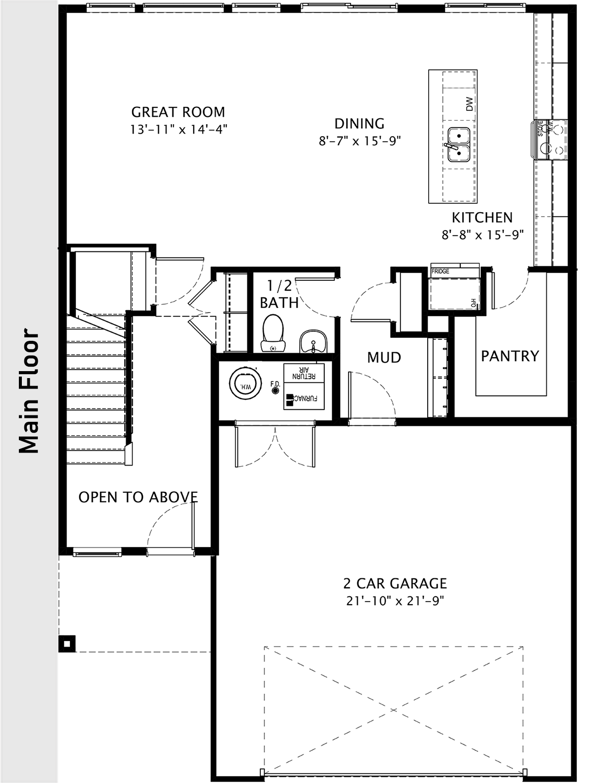
This beautiful home features an open floor plan with a large pantry in kitchen and the laundry room by the bedrooms.
pin link
3 or 4
beds
3
bath
Finished:
2,043
sq ft
Main Floor:
912
sq ft
Upper Floor:
1,131
sq ft
Optional Basement:
921
sq ft
Gallery
Step inside a virtual tour
No items found.
Other House Plans
These might be of interest to you.
Arlington
Two Story
3
beds
2.5
bathrooms
2,397
sq ft
Briarwood
Two Story
4
beds
2.5
bathrooms
2,127
sq ft
Cranford
Two Story
4
beds
2.5
bathrooms
1,934
sq ft
See all house plans
Start your dream home today!
We strive to build each of our homes with YOUR family in mind. Give us a call, text or email to get started!
Contact
© Sierra Homes. All rights reserved.